Project CS-541
Project owner :Mohamed Ali
Project type: Residential
Location: Badr city
Net Area : 100m2
Designed by : Salma kirtam
Reviewed by : Hadeer Mohamed
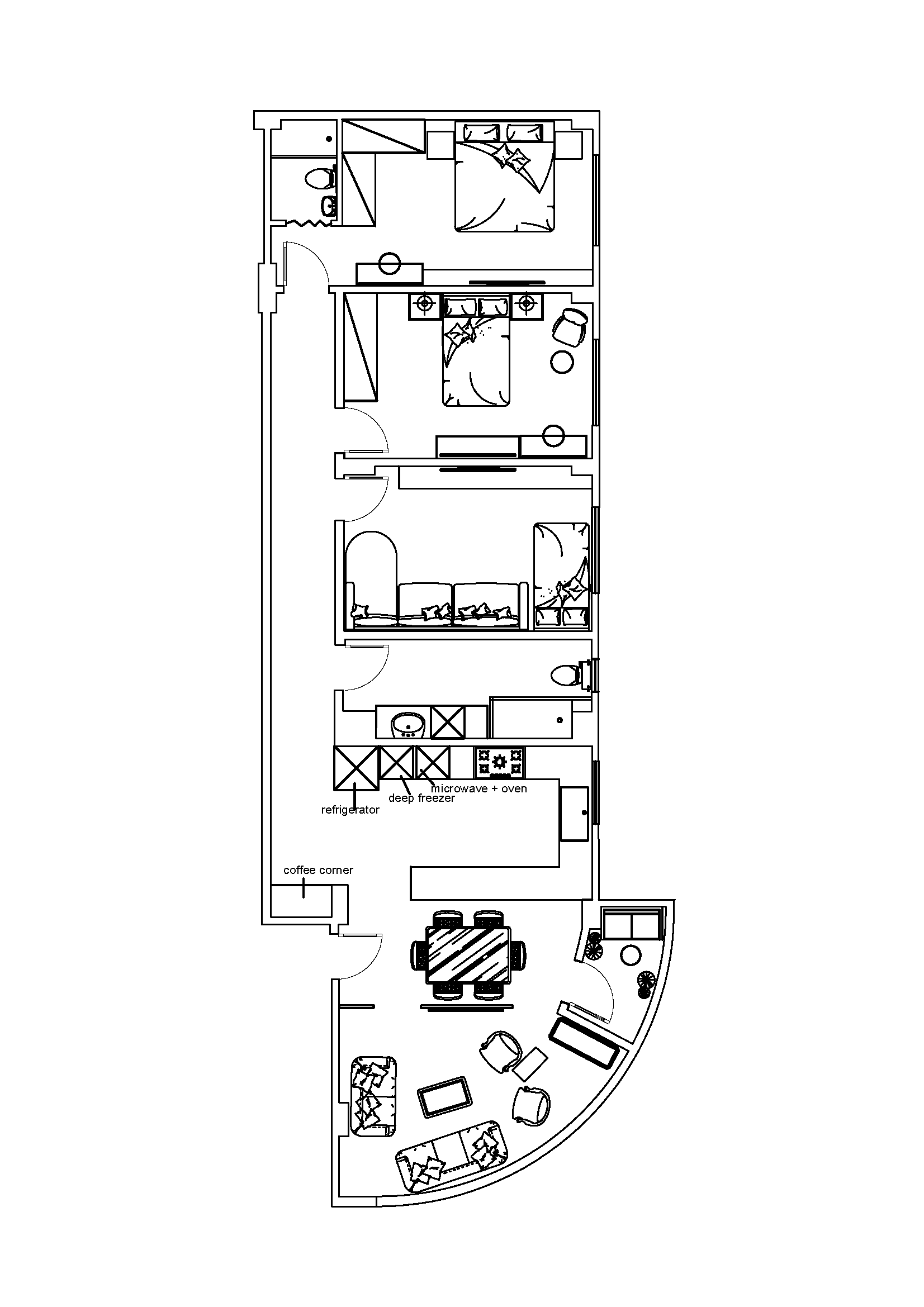
Architectural layout
2D Plan Delivered from the client (9-12-2021)

Furniture Layout
First Furniture Distribution According to Client's Needs (27-12-2021)

Second Furniture Distribution According to Client's Needs (22-2-2022)




