Project CS-560
Project owner : Abdallah Tawfik
Project type : Residential
Location : Alexandria
Net area :125m2
Designed by : Mohamed Zakaria
Reviewed by : Hadeel Mohamed
Architectural layout
2d Plan Delivered From The Client (14-2-2022)

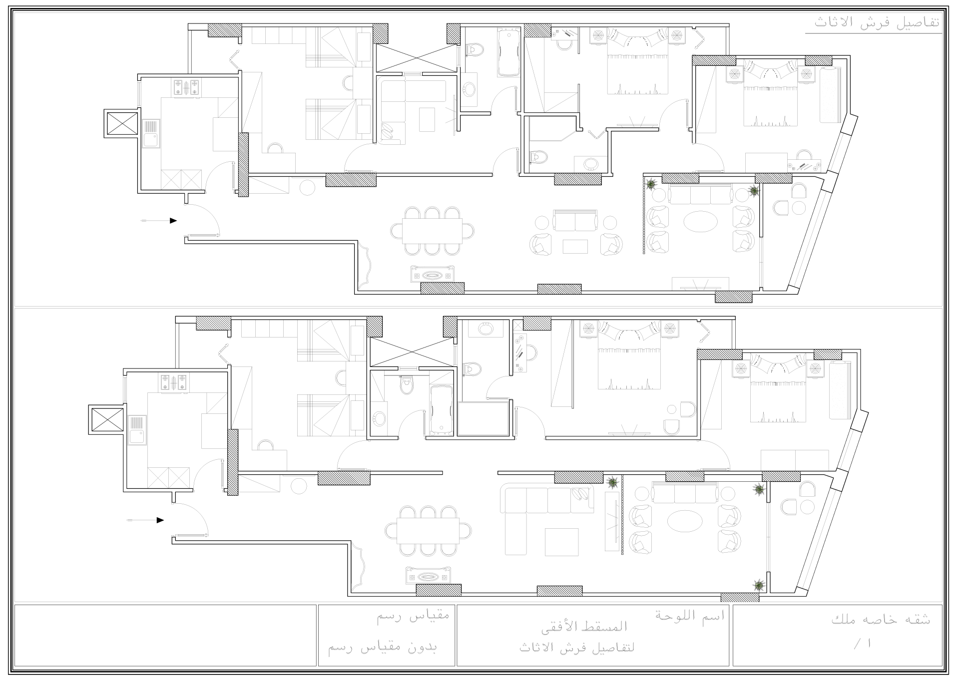
Furniture Layout
First Furniture Layout Distribution According to Client's Needs (19/2/2022)
Second Furniture Layout Distribution According to Client's Needs (19/2/2022)
Third Furniture Layout Distribution According to Client's Needs (19\2\2022)

Child Room Furniture Distribution According to Client's Needs (21\2\2022 )

Final furniture layout distribution sent to the client ( 21\2\2022)





