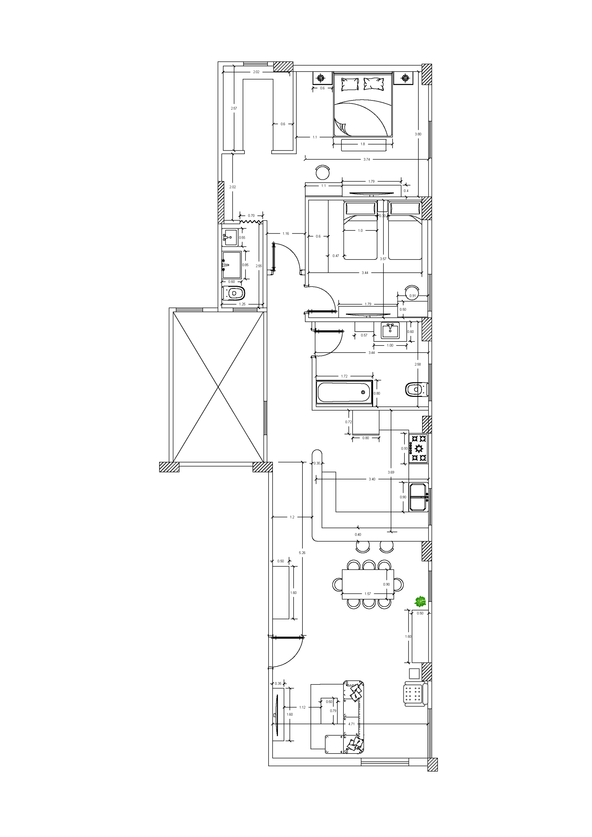
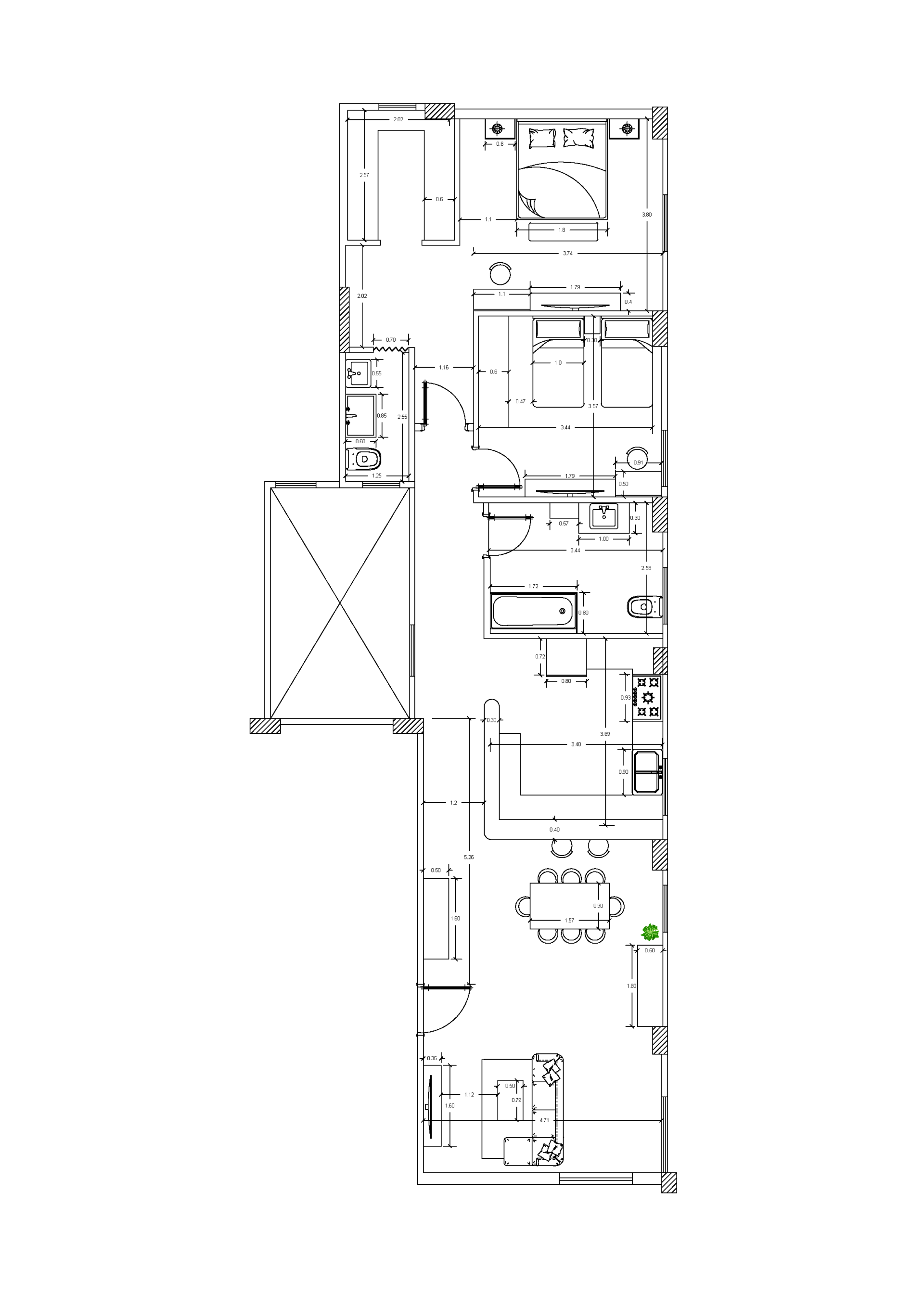
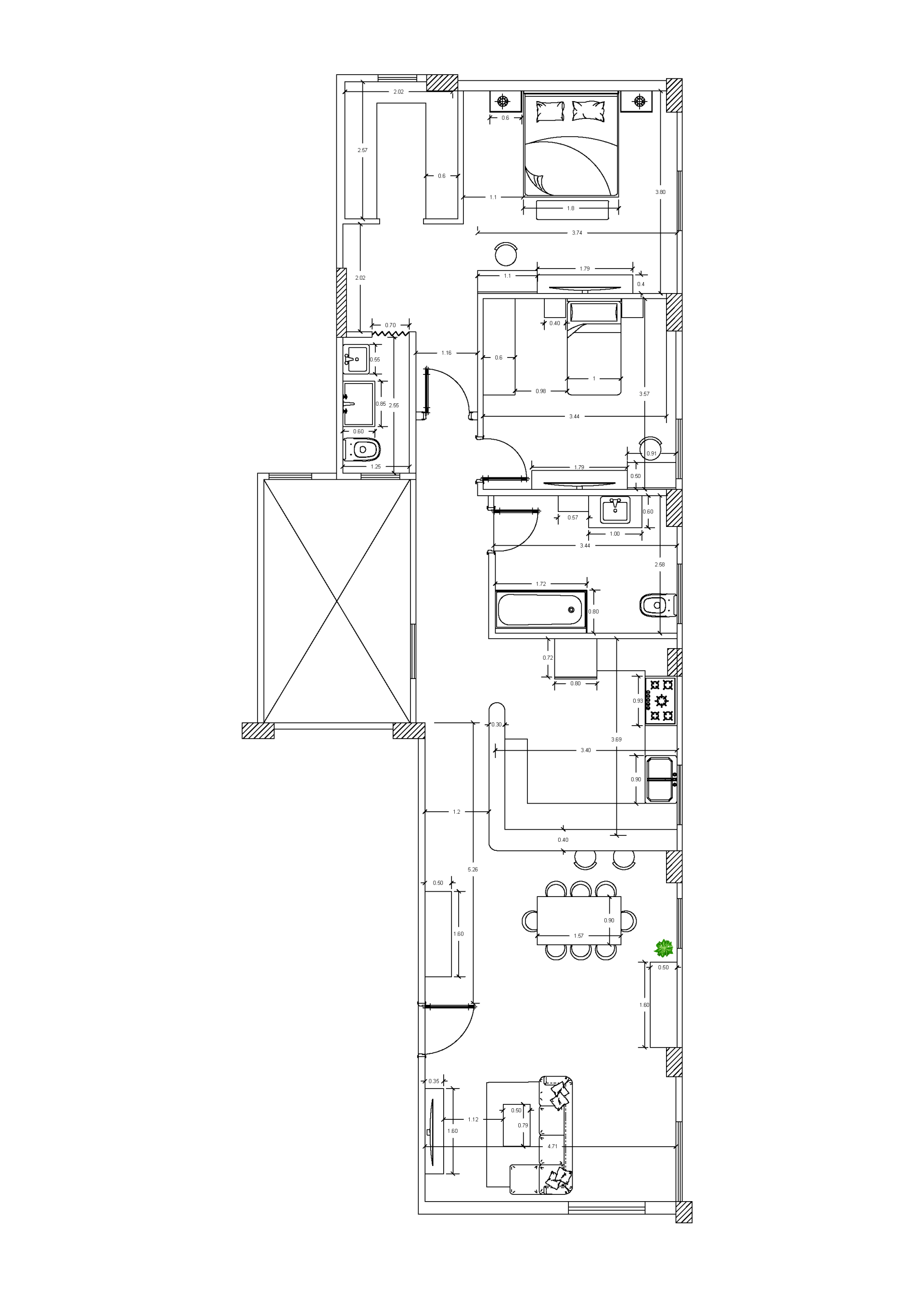
Project owner: Mr.Noaman
Project Type: Residential
Location: 5th Settlement
Net Area: 100m2
Designed by: Ahmed Hesham
First Furniture Distribution Options According to Client's Needs (14-3-2022)

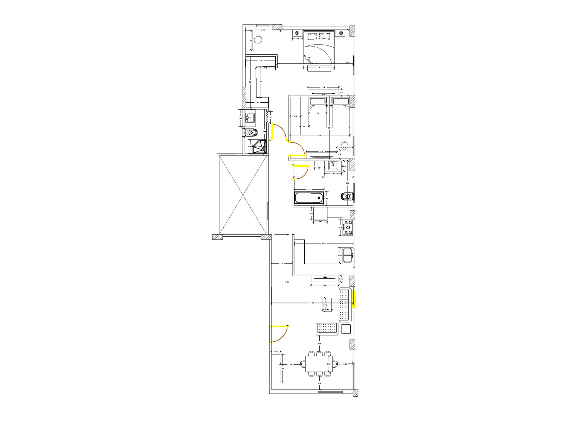
Bathroom
Unit 3, Tower 16, Bavaria Town Compound, Kattamya, Maadi Ring Road , Cairo
Egypt
Sales Call / WhatsApp + 20 1000 61 7202
Business Development + 20 1000 73 9109
info@moullak.com
Saudi Arabia
Call / WhatsApp +966 580 98 0680
info@moullak.com
All Rights Reserved | Moullak