Project CS-572
Project CS-572
Project owner: Mr.Seif badawi
Project Type: Residential
Location: 6 October
Net Area: 270m2
Designed by: ahmed hisham
reviewed by : hadeel mohamed
First phase : outline
Architectural layout
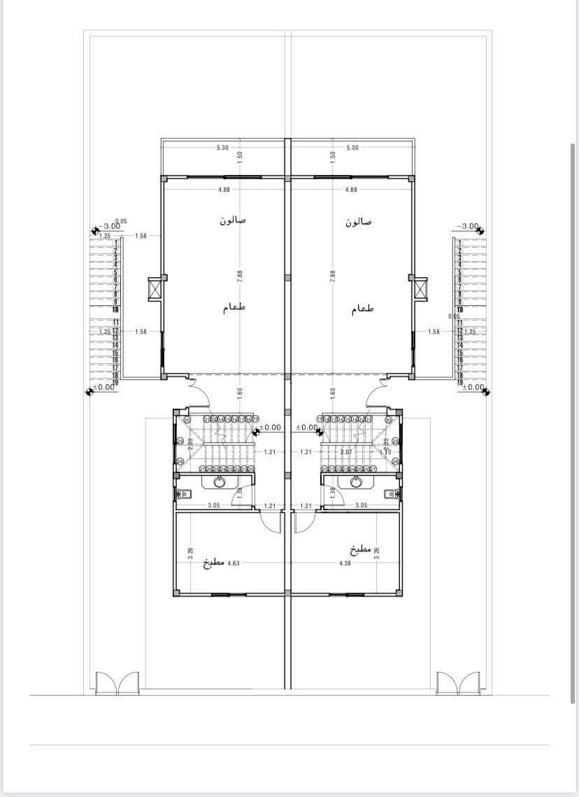
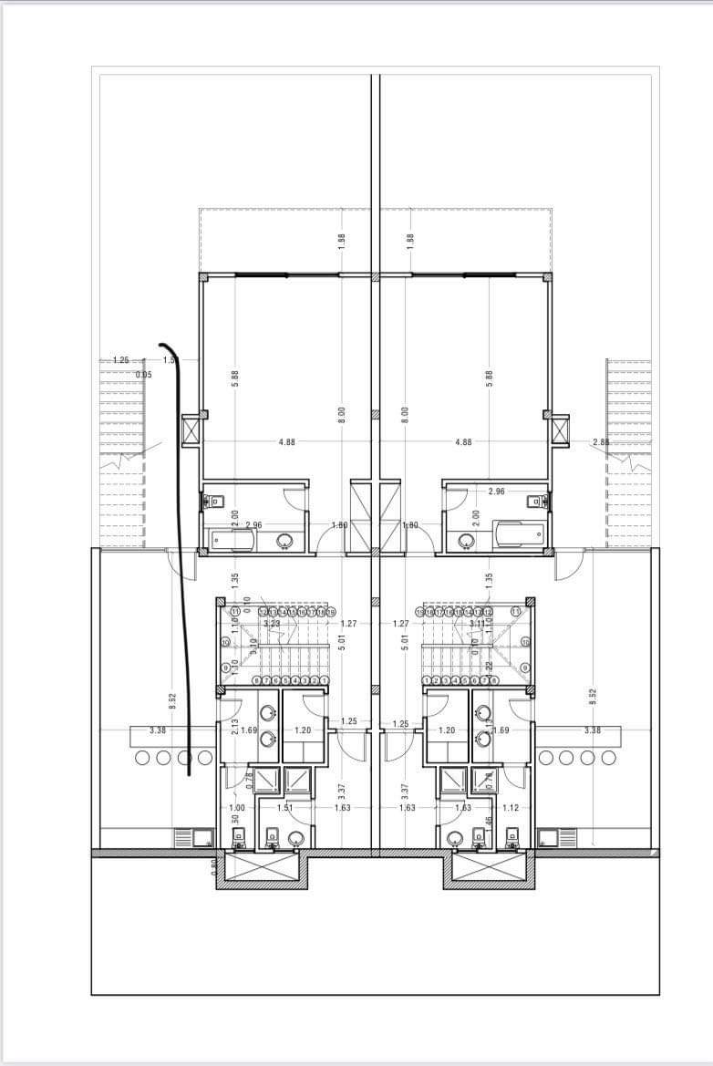
2D Plan Delivered from client (16/3/2022)
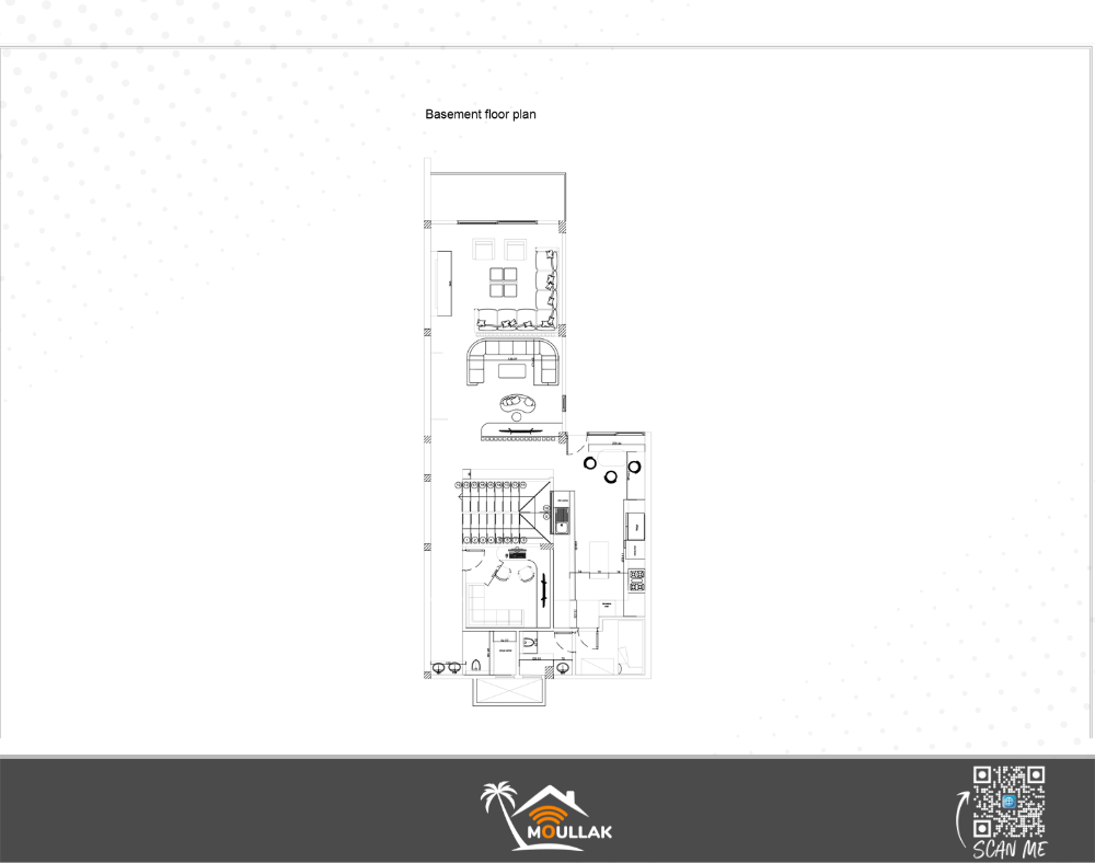
Furniture layout
Furniture Distribution options According to Client's Needs (31-3-2022)
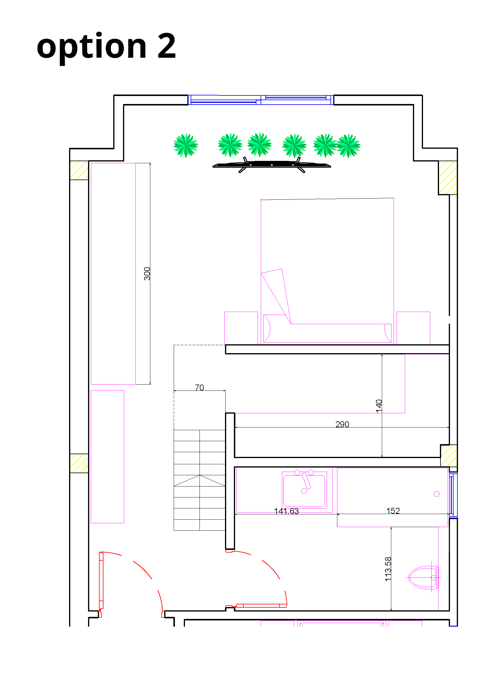
Bedroom Furniture Distribution options According to Client's Needs (4-4-2022)














































































