Project CS-501
Project CS-501
Project owner: Mr. AbdElaziz Mahmoud
Project Type: Residential
Location: Cairo
Net Area = 140m2
Style: Modern
Designed by: Ahmed Hesham
Reviewed by: Logine Shakweer
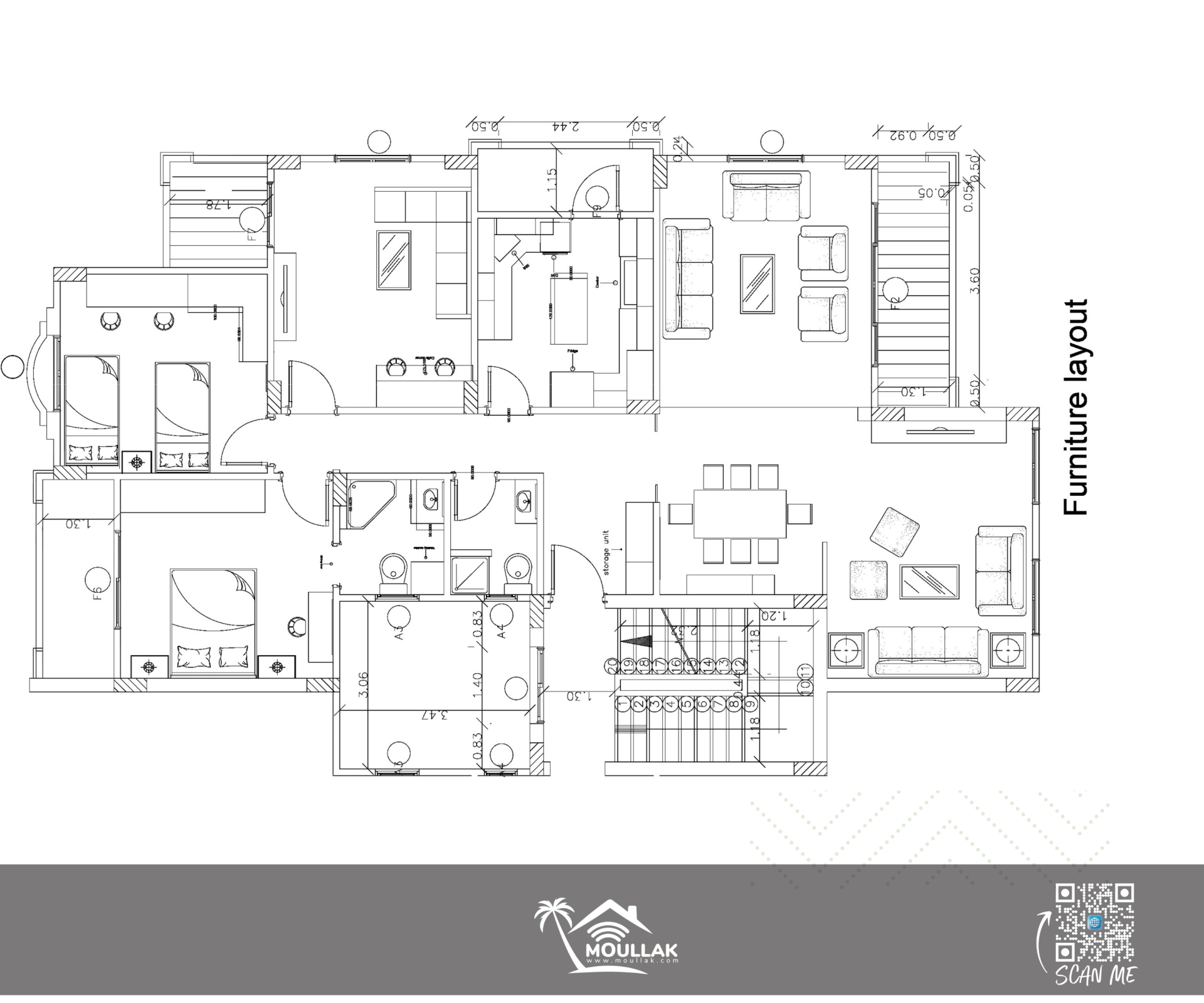
In this design project, we depended on re-modeling the architectural layout to fit the client’s needs and to maintain traffic keeping in mind all the project specifications and material usage possibilities visualizing the complete project with all the details.
Interior Design
Reception
Master bedroom
Bedroom
Main Bathroom
Kitchen
Shop Drawing
Material list
Challenge
Challenge
one of the most important challenges that we always are trying to solve is keeping that mix between the colors and style of the existing furniture and the new interior design style
Value
Tell potential customers why they should invest in this product. Describe its benefits, its advantages over similar products, and its unique features. Make sure potential customers feel confident about investing their money in this product. Will it last a lifetime? Is it healthier than other products? Maybe it is unique and handmade? Whatever the value is, don’t be shy about bragging!
Related Projects
Related Projects




























