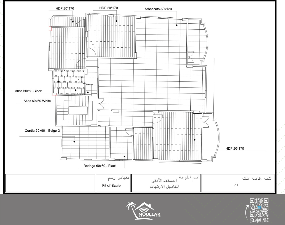
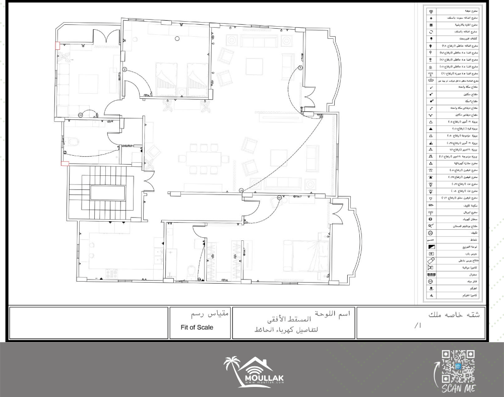
Project CS-524
Project CS-524
Project owner: Ahmed Mohammed
Project Type: Residential
Location: Mansoura
Net Area:200m2
Style: Classic
Designed by: Hadeel Mohamed \ Aya saber
According to our client's needs and our technical team's vision we designed this residential unit with neutral colors and comfortable design mixed with some luxury touches














































































