Project CS-560
Project Owner : Abdallah Tawfik
Project Type : Residential
Location : Alexandria
Net area :125m2
Style: Modern
Designed by : Mohamed zakaria
Reviewed by : Hadeel Mohamed
First Phase : Outline
Architectural layout
2d Plan Delivered From The Client (14-2-2022)

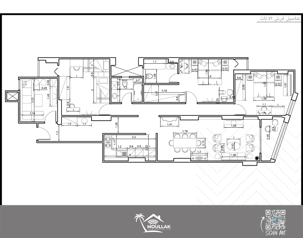
Furniture Layout
Furniture Layout Distribution According to Client's Needs (19/2/2022)
Child Room Furniture Distribution According to Client's Needs (21\2\2022 )
Final furniture layout distribution sent to the client ( 21\2\2022)

Second Phase: Interior Design
Every room is transformed according to our clients’ aspirations and also by proposing window treatments, furnishing, cabinetry, lighting, carpets and floor plans.
Each furniture or decoration item is carefully designed and developed taking care of the finest details and colors


















































