Project CS-564
Project owner : Ehab Markram
Project type : Residential
Location: cairo
Net Area : 164m2
Designed by : Hager Aymen
Reviewed by : Hadeel Mohamed
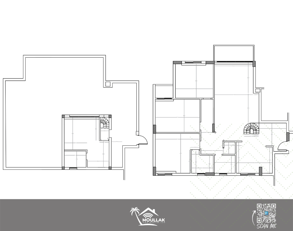
First Phase : Outline
Architectural layout
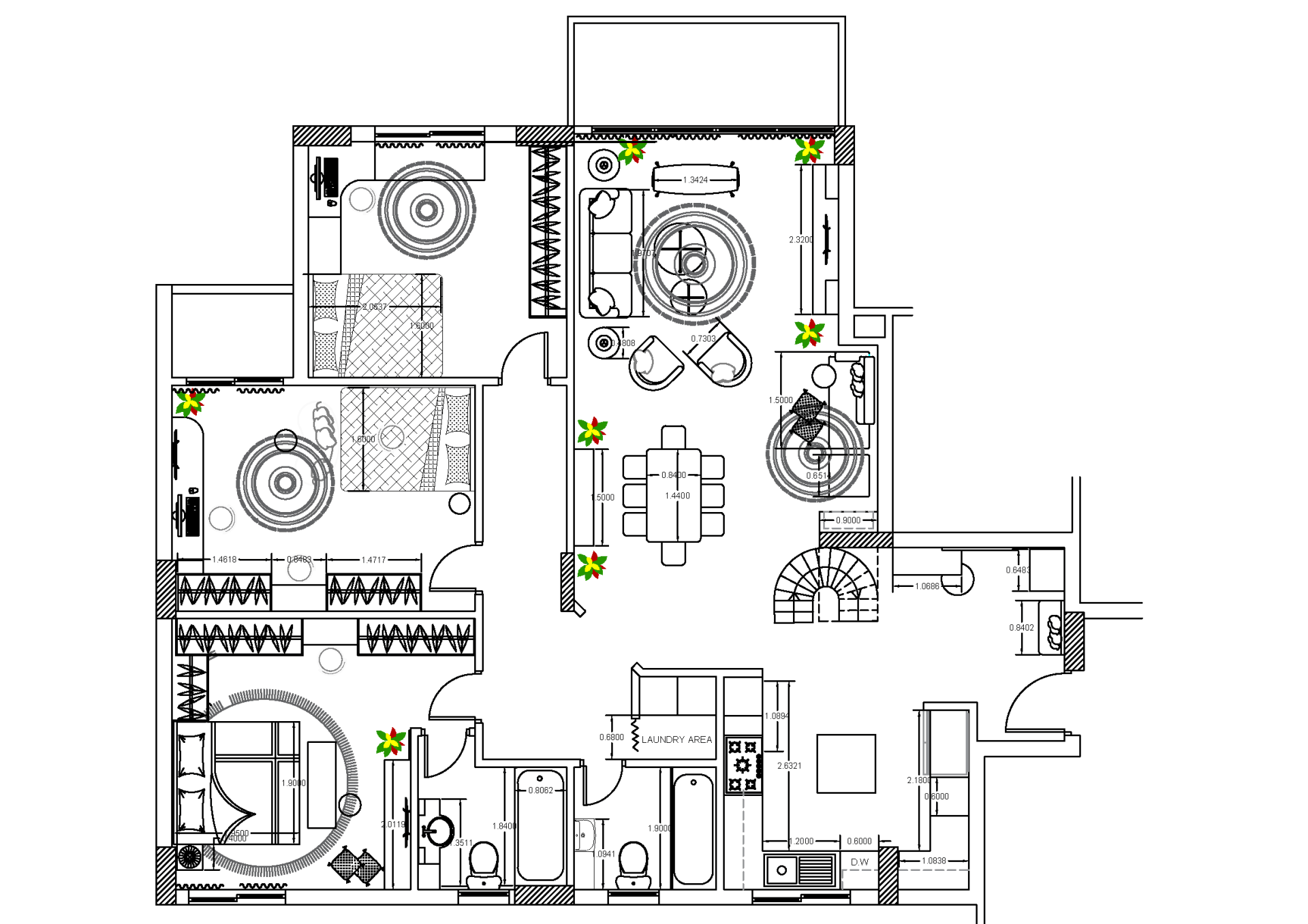
2D Plan Delivered from client (6/2/2022)
Furniture Layout
First furniture distribution according to the client's needs
( 6\3\2022)
Second furniture layout according to client's needs (9\3\2022)
Second Phase: Interior Design
Every room is transformed according to our clients’ aspirations and also by proposing window treatments, furnishing, cabinetry, lighting, carpets and floor plans.
Each furniture or decoration item is carefully designed and developed taking care of the finest details and colors






















































