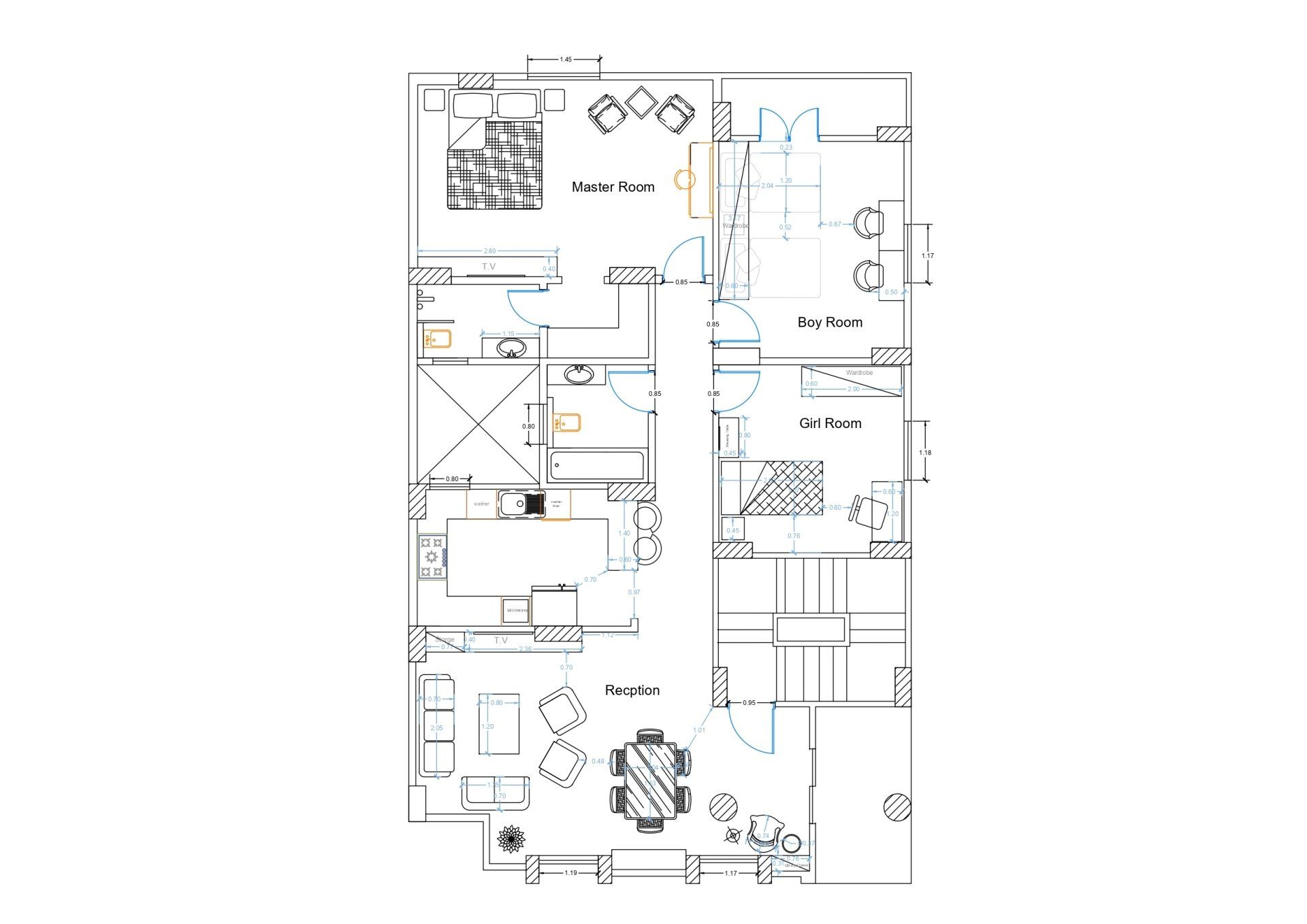
Project CS-609
Project owner: Hossam Abozaid
Project Type: Residential
Location: Asyut city
Net area: 135 m2
Style: Neo Classic
Designed by: Mehad Gouda
Reviewed by: Eng. Shahenda Elsanady
First Phase : 2D Furniture plan
First Furniture Plan Sent to The Client (24/7/2022 )
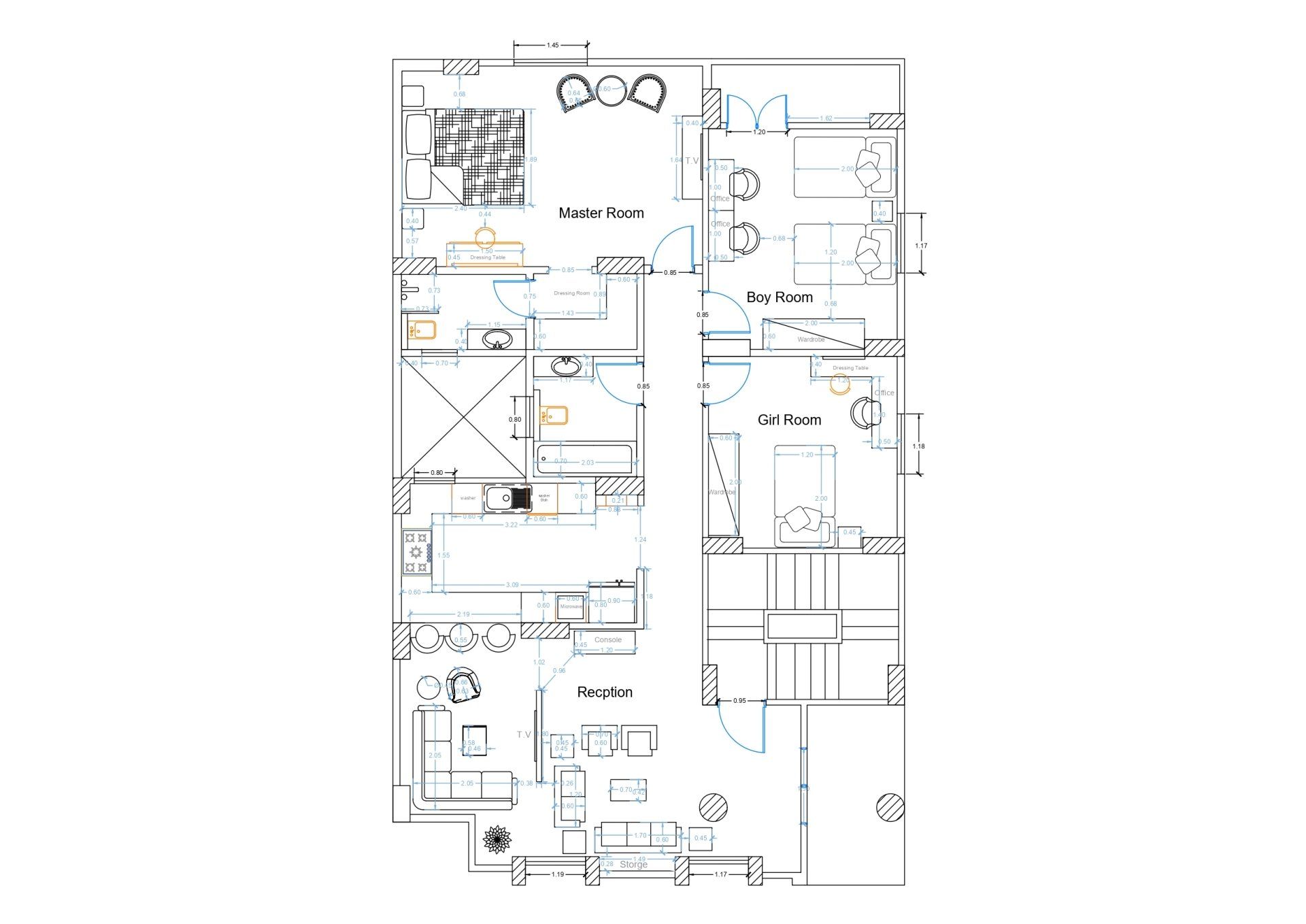
kitchen plan options sent to the client (27/7/2022)
Dressing room plan sent to the client (27/7/2022)
Furniture plan sent to the client (7/8/2022)
Second Phase : Interior Design
When comfort meets simplicity
we Chose sofas, armchairs, consoles, chests of drawers, desks, and wardrobes with impressive but simple shapes. Take care of the cleanliness of the line, composition and harmony in the arrangement of each room, as well as arrangement coherence























