Project CS-581
Project owner: Mr.Alaaeldin
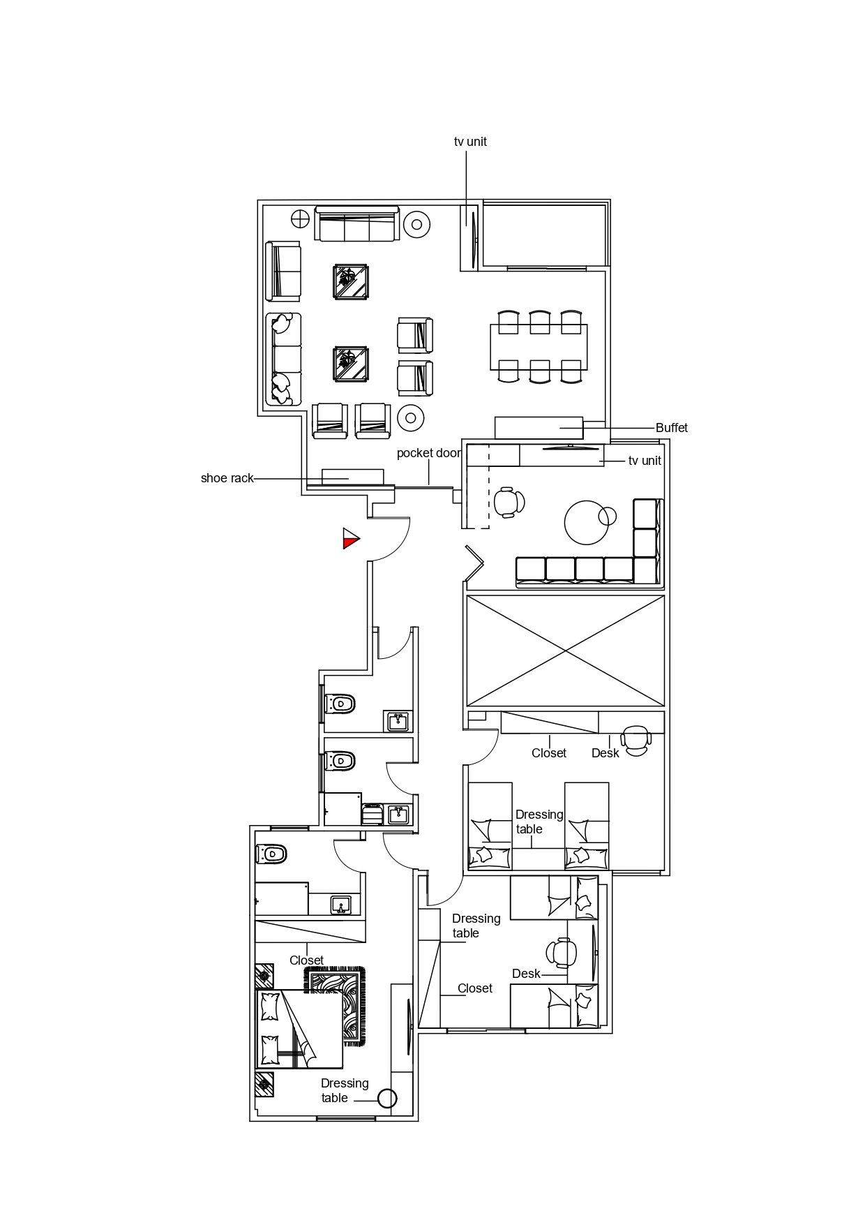
Project Type: Residential
Location: Cairo
Net area: 163 m2
Style: Neo Classic
Designed by: Nouran Nader
Reviewed by: Eng Menna Ibrahim
Project owner: Mr.Alaaeldin
Project Type: Residential
Location: Cairo
Net area: 163 m2
Style: Neo Classic
Designed by: Nouran Nader
Reviewed by: Eng Menna Ibrahim
Unit 3, Tower 16, Bavaria Town Compound, Kattamya, Maadi Ring Road , Cairo
Egypt
Sales Call / WhatsApp + 20 1000 61 7202
Business Development + 20 1000 73 9109
info@moullak.com
Saudi Arabia
Call / WhatsApp +966 580 98 0680
info@moullak.com
All Rights Reserved | Moullak