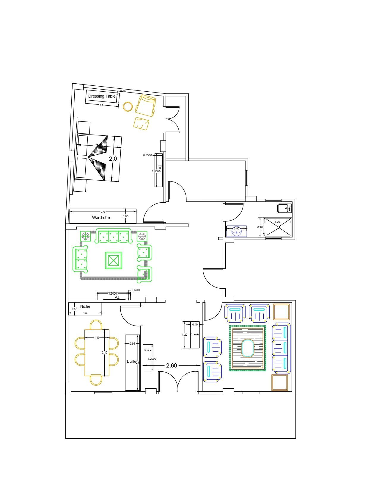
Project CS-592
Project owner: Gamal Abdel Nasser
Project Type: Residential
Location: Cairo
Net area: 95 m2
Style: Neo Classic
Reviewed by: Eng. Shahenda Elsanady
First Phase : 2D Furniture Plan
First Furniture Plan Sent to The Client (26/6/2022 )

Second Furniture Plan Sent to The Client (27/6/2022 )

Third Furniture plan sent to the client (28/6/2022)
Second Phase : Interior Design
When comfort meets simplicity
we Chose sofas, armchairs, consoles, chests of drawers, desks, and wardrobes with impressive but simple shapes. Take care of the cleanliness of the line, composition and harmony in the arrangement of each room, as well as arrangement coherence























