Project CS-593
Project owner: Mr.Mazen
Project Type: Residential
Location: Cairo
Net area: 175 m2
Designed by: Ahmed Hesham
Reviewed by: Eng Hala Ahmed
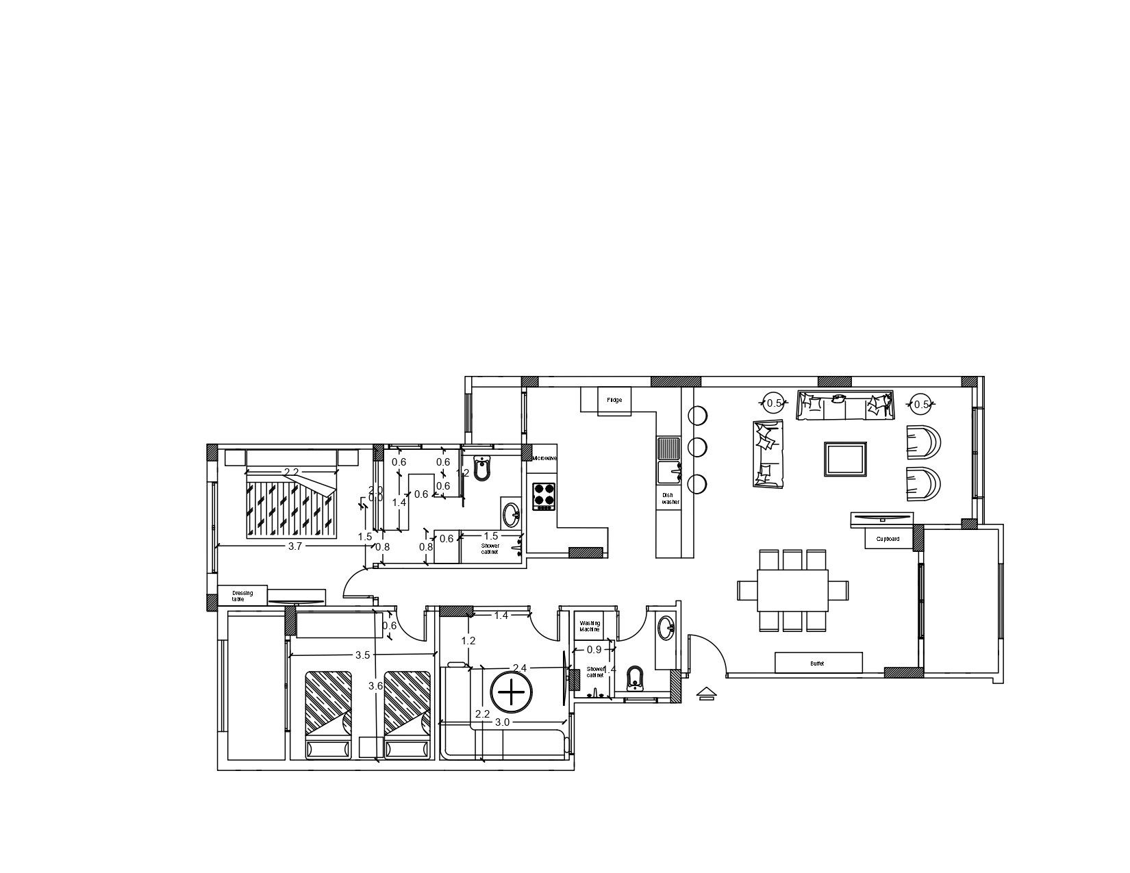
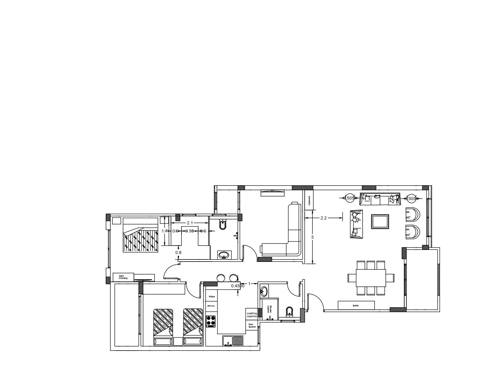
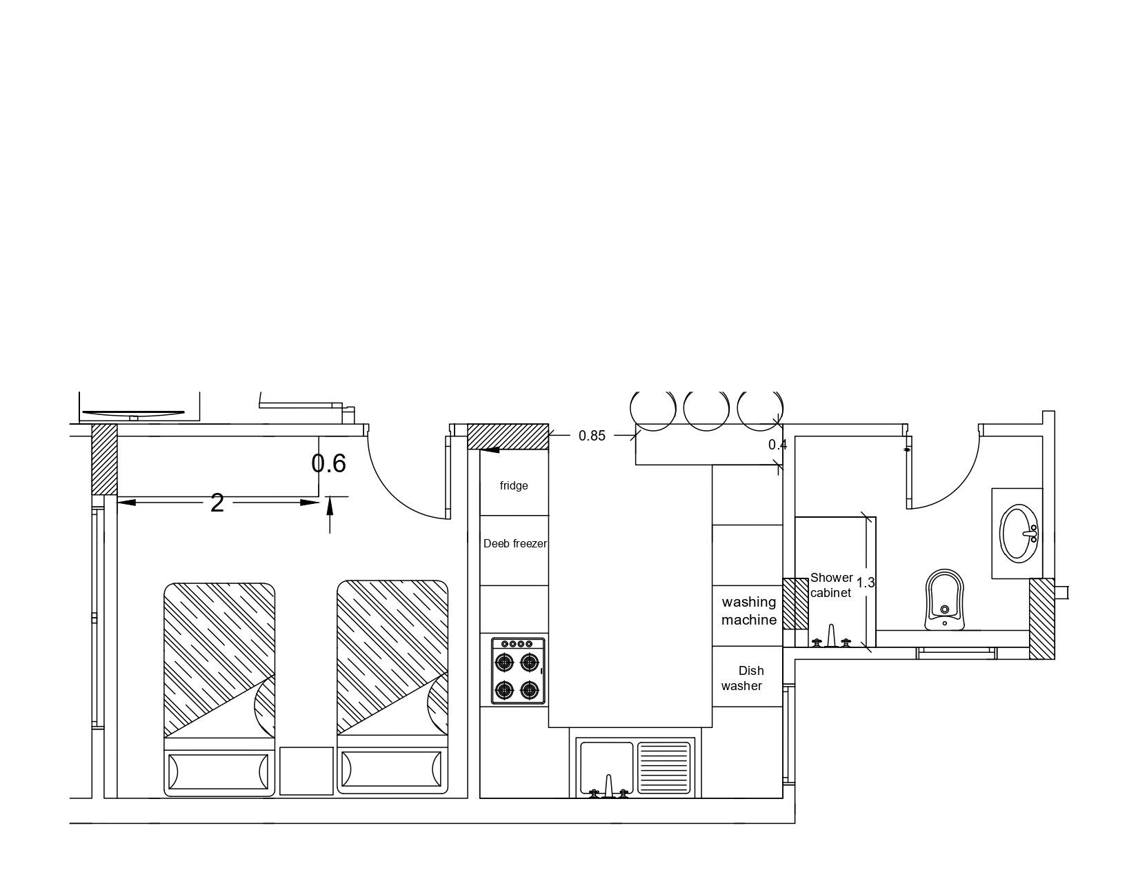
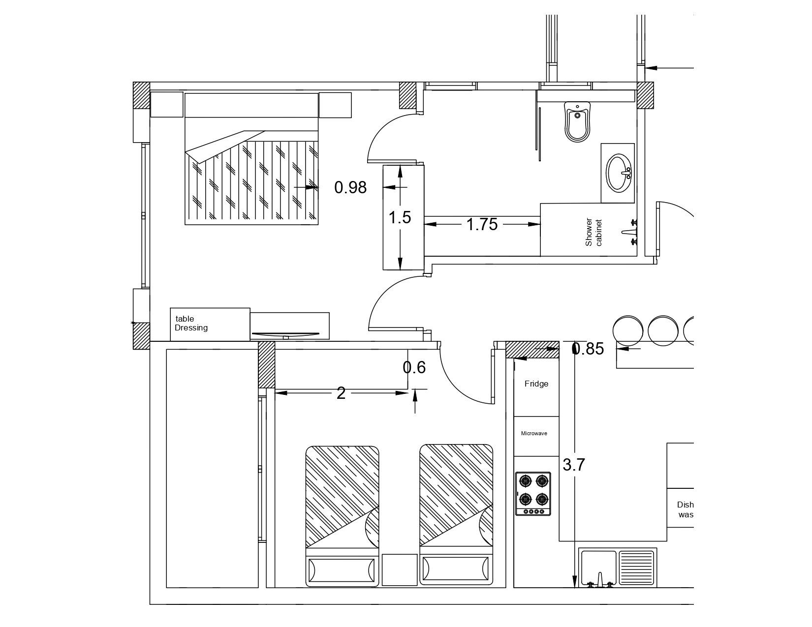
First Phase : 2D Furniture Plan
Furniture Plan Options Sent to The Client (26 /6/2022 )
Second Furniture Plan Sent to The Client (27 /6/2022 )

Third Furniture Plan options Sent to The Client (28/6/2022 )
Fourth Furniture Plan Sent to The Client ( 4/7/2022)

Fifth Furniture Plan Sent to The Client (18/7/2022 )
Sixth Furniture Plan Sent to The Client (19/ 7/ 2022)

Seventh Furniture Plan Sent to The Client (25/7/2022)

The eighth furniture plan was sent to the client (31/7/2022)
The last furniture Plan Sent to The Client (3 /8/2022 )












