Project CS-598
Project owner: Mr.Mohanad
Project Type: Residential
Designed by: Aya Saber
Reviewed by: Eng. Menna Ibrahim
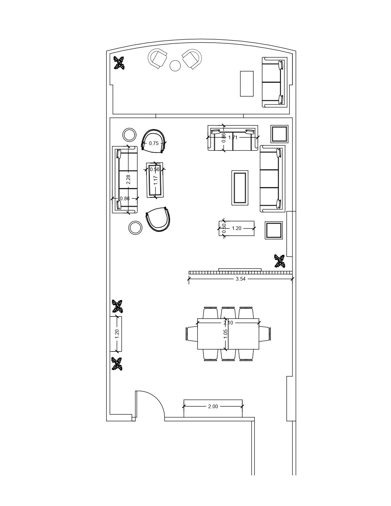
First Phase : 2D Furniture Plan
Furniture Plan Sent to The Client (30/6/2022 )
Furniture Plan Sent to The Client (6/7/2022 )

Moodboard (23/7/2022)



























