Project CS-601

Project owner : Mr. Mina

Project Type: Residential

Location: Cairo

Reviewed by: Eng. Shahenda Elsanady

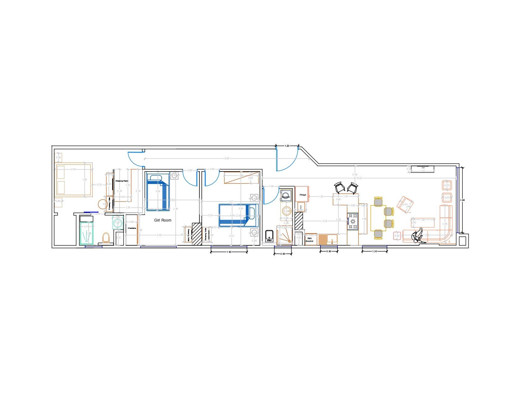
First Phase : 2D Furniture Plan


Furniture Plan options Sent to The Client  (26/7/2022 )

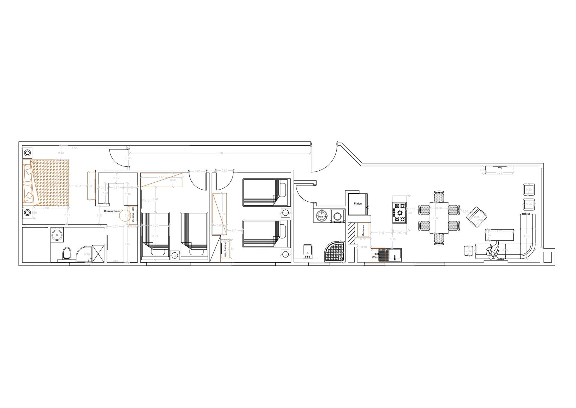
Bedrooms options  plan  sent to the client (27/7/2022)

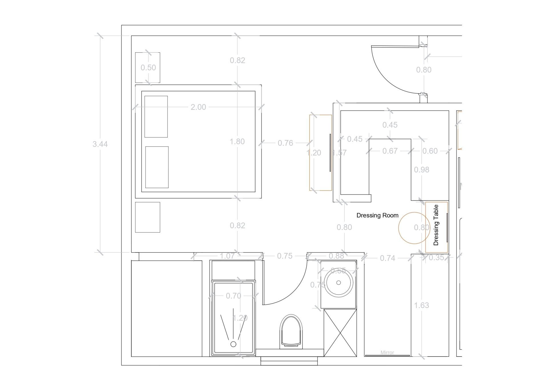
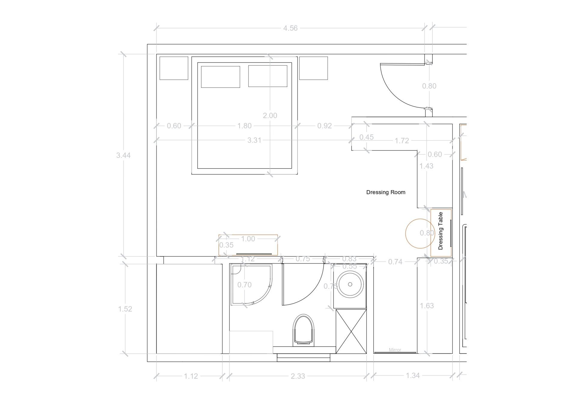
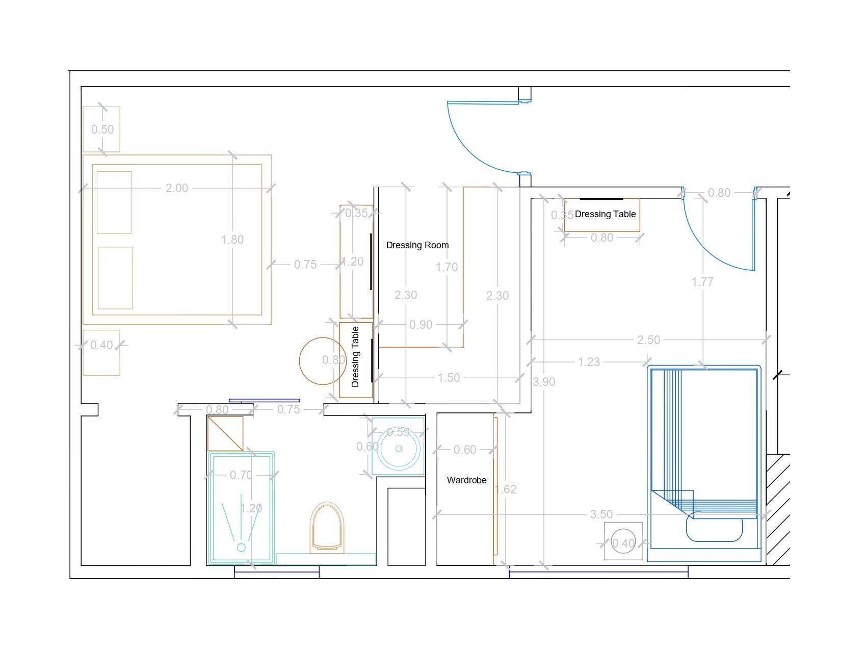
Master bedroom plan sent to the client (3/8/2022)

Furniture plan options sent to the client (7/8/2022)

Furniture Plan Options Sent to The Client (9/8/2022)

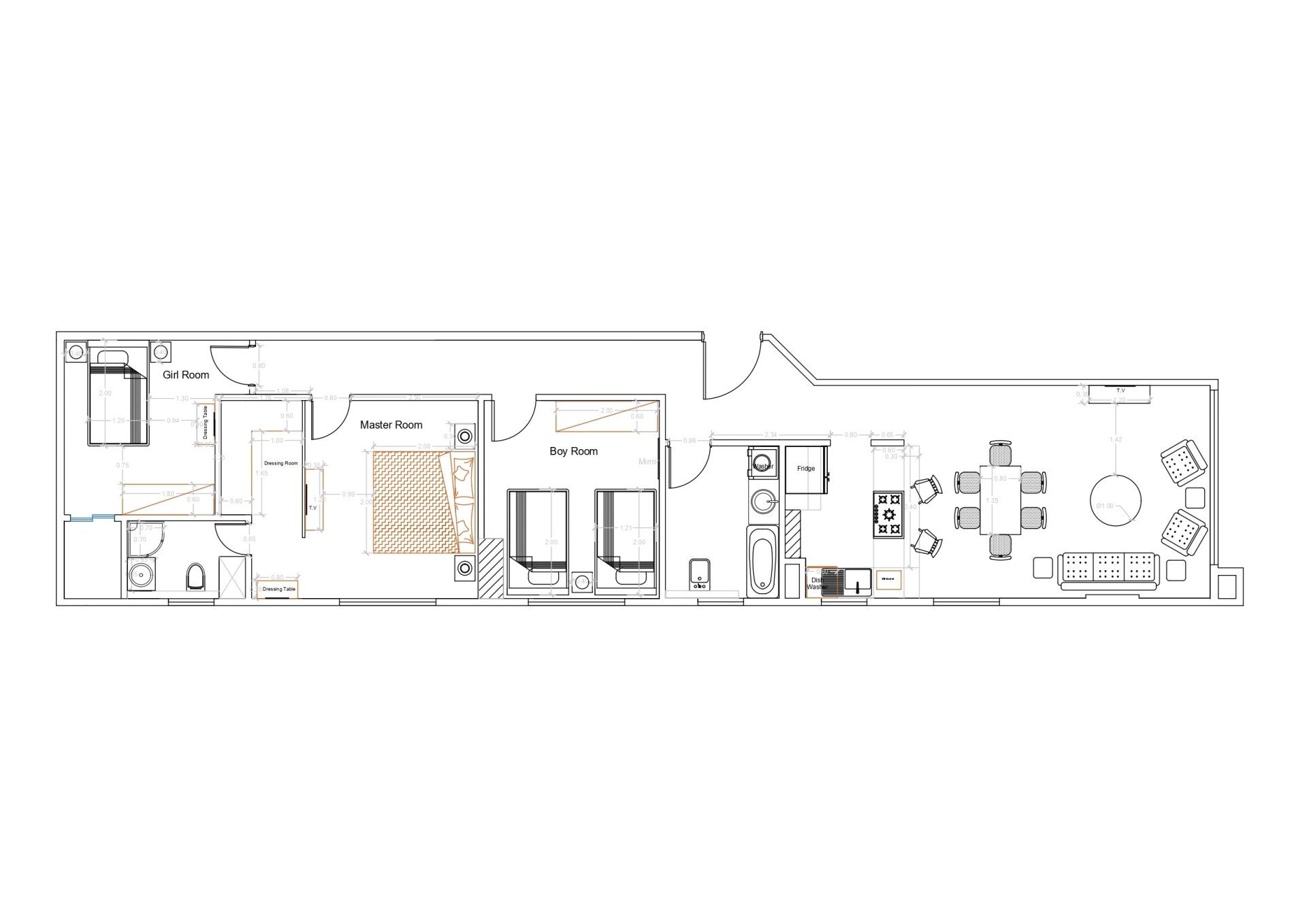
Reception & Bathroom  Plan Option Sent to The Client (14/8/2022)

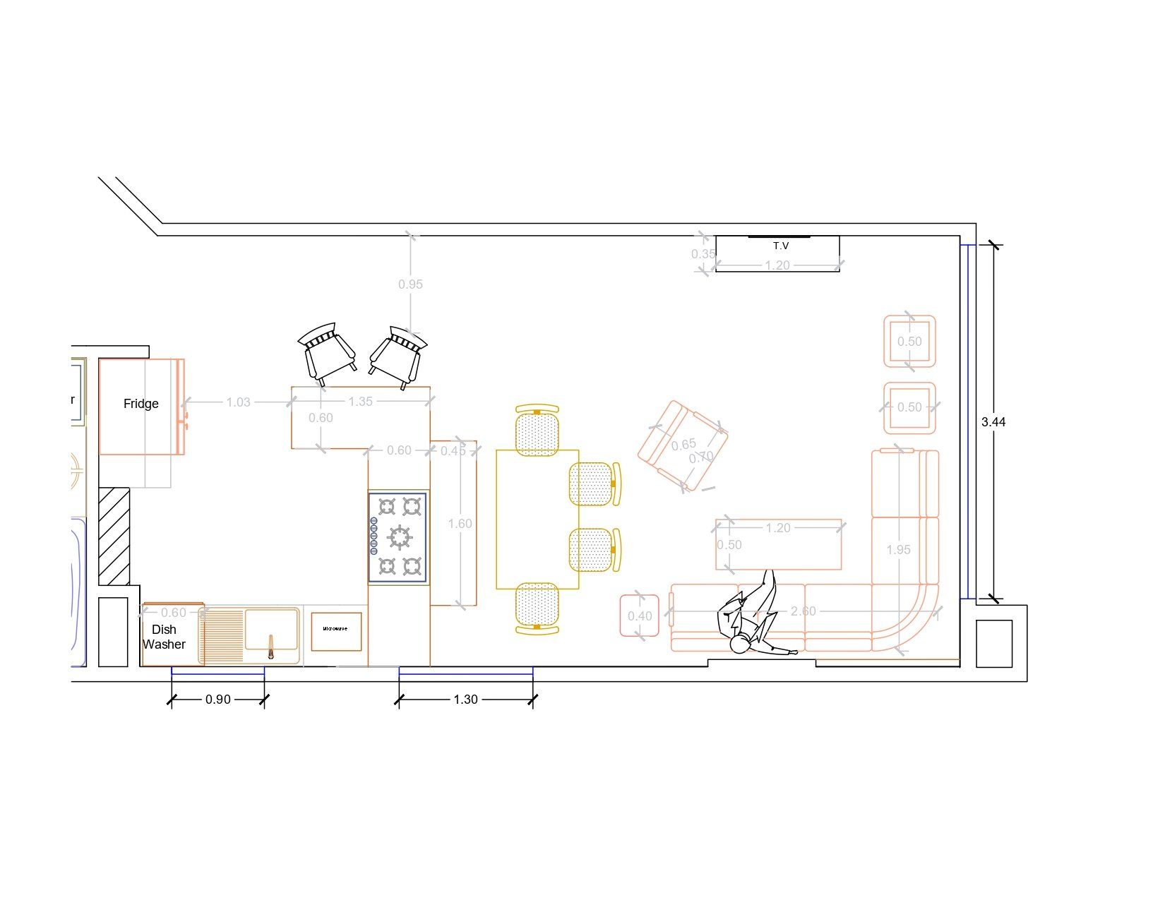
Reception Plan Option Sent to The Client (18/8/2022)

Reception Plan Option Sent to The Client (30/8/2022)

Related Projects