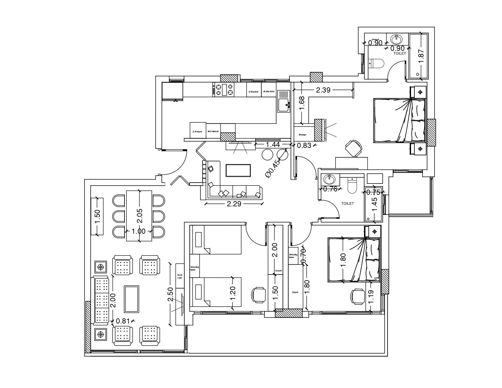
Project CS-608
Project owner: Mr. Abdel Kader
Project Type: Residential
Location: Cairo
Net area: 116 m2
Reviewed by: Eng. Menna Ibrahim
Project owner: Mr. Abdel Kader
Project Type: Residential
Location: Cairo
Net area: 116 m2
Reviewed by: Eng. Menna Ibrahim
Unit 3, Tower 16, Bavaria Town Compound, Kattamya, Maadi Ring Road , Cairo
Egypt
Sales Call / WhatsApp + 20 1000 61 7202
Business Development + 20 1000 73 9109
info@moullak.com
Saudi Arabia
Call / WhatsApp +966 580 98 0680
info@moullak.com
All Rights Reserved | Moullak