Project CS-617

Project owner: Mohamed  Abdulaziz

Project Type: Residential

Reviewed by: Eng. Menna Ibrahim

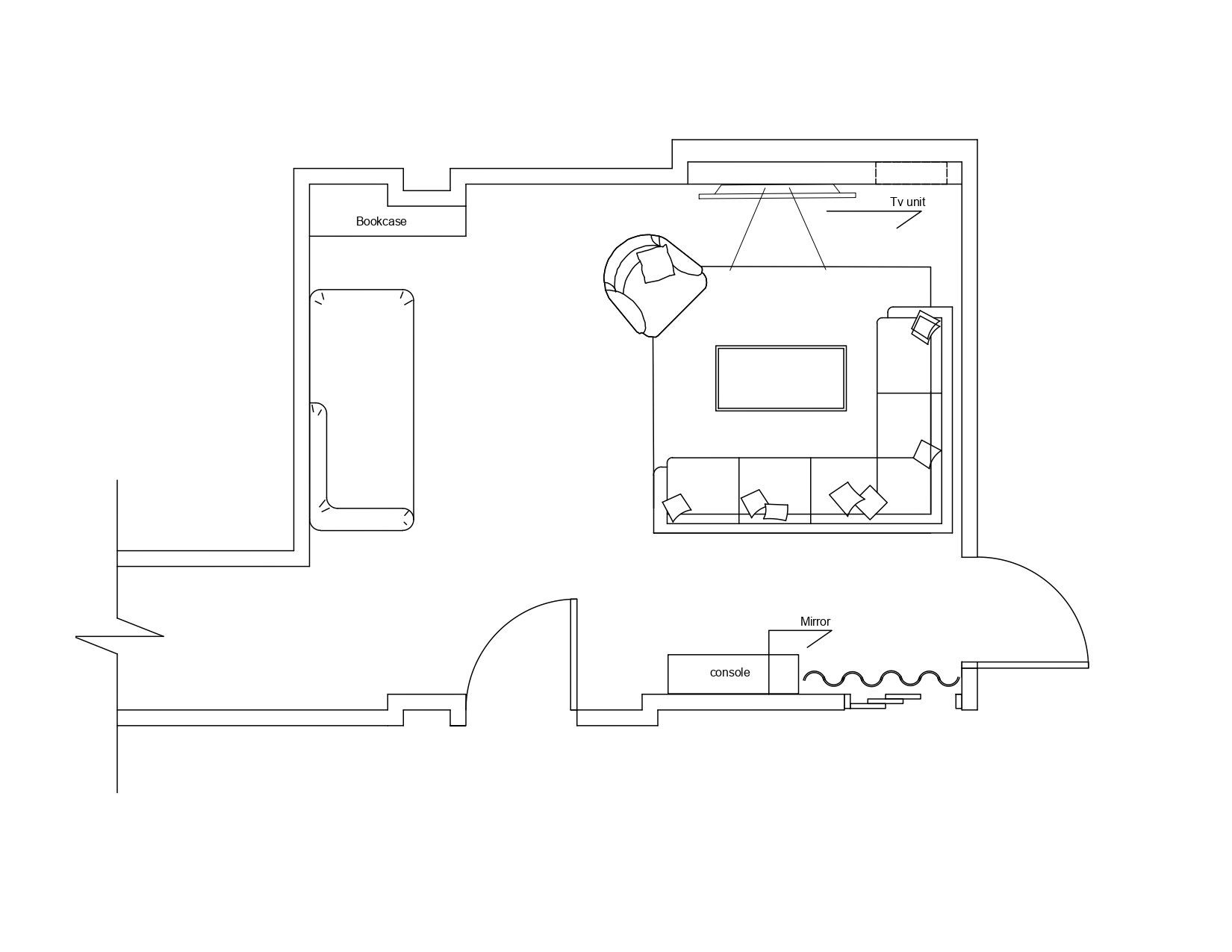
First Phase : 2D  Furniture Plan


Furniture Plan options Sent to The Client  (20/8/2022 )

Related Projects