Project CS-596
Project owner: Ahmed Elshawadfy
Project Type: Residential
Location: Cairo
Net area: 150 m2
Style: Neoclassic
Designed by: Salma Medhat
Reviewed by: Eng. Shahenda Elsanady
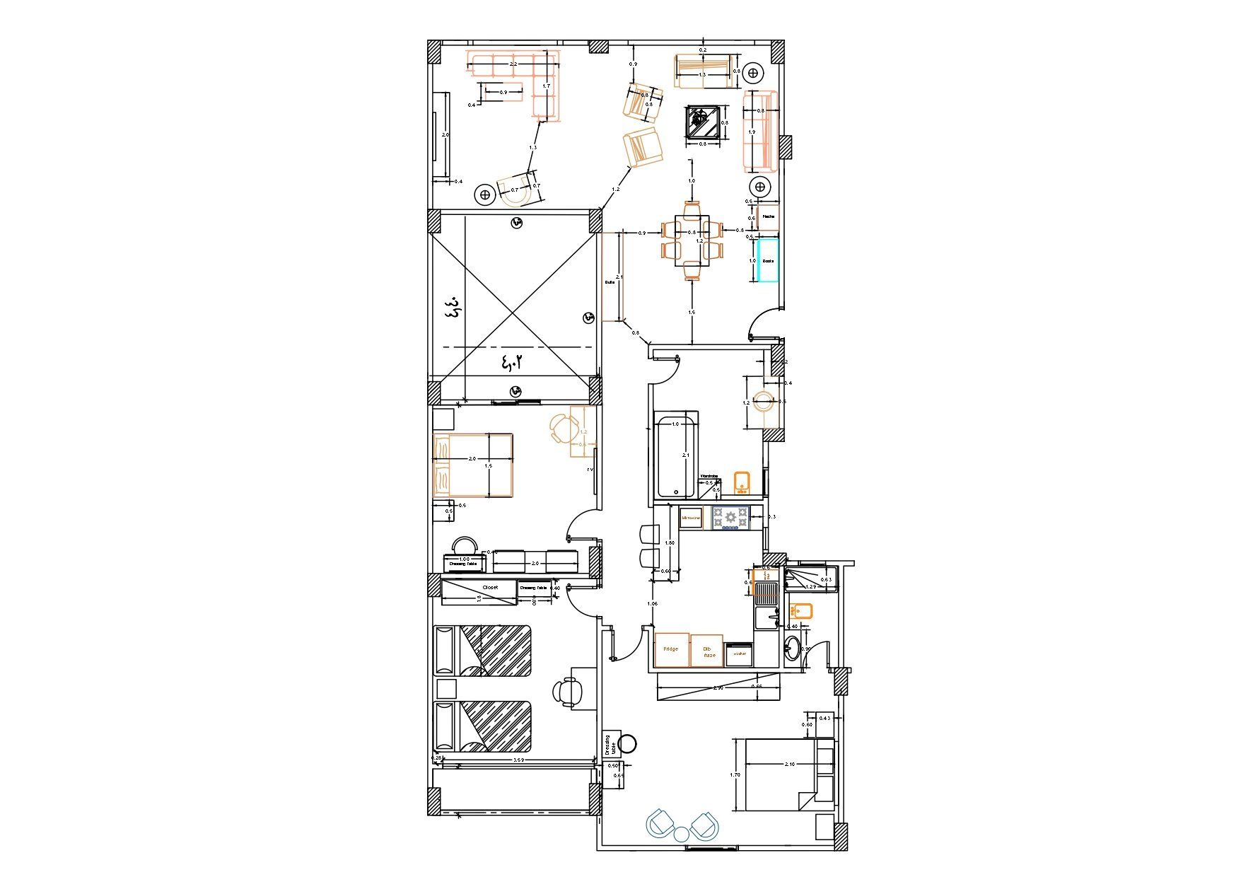
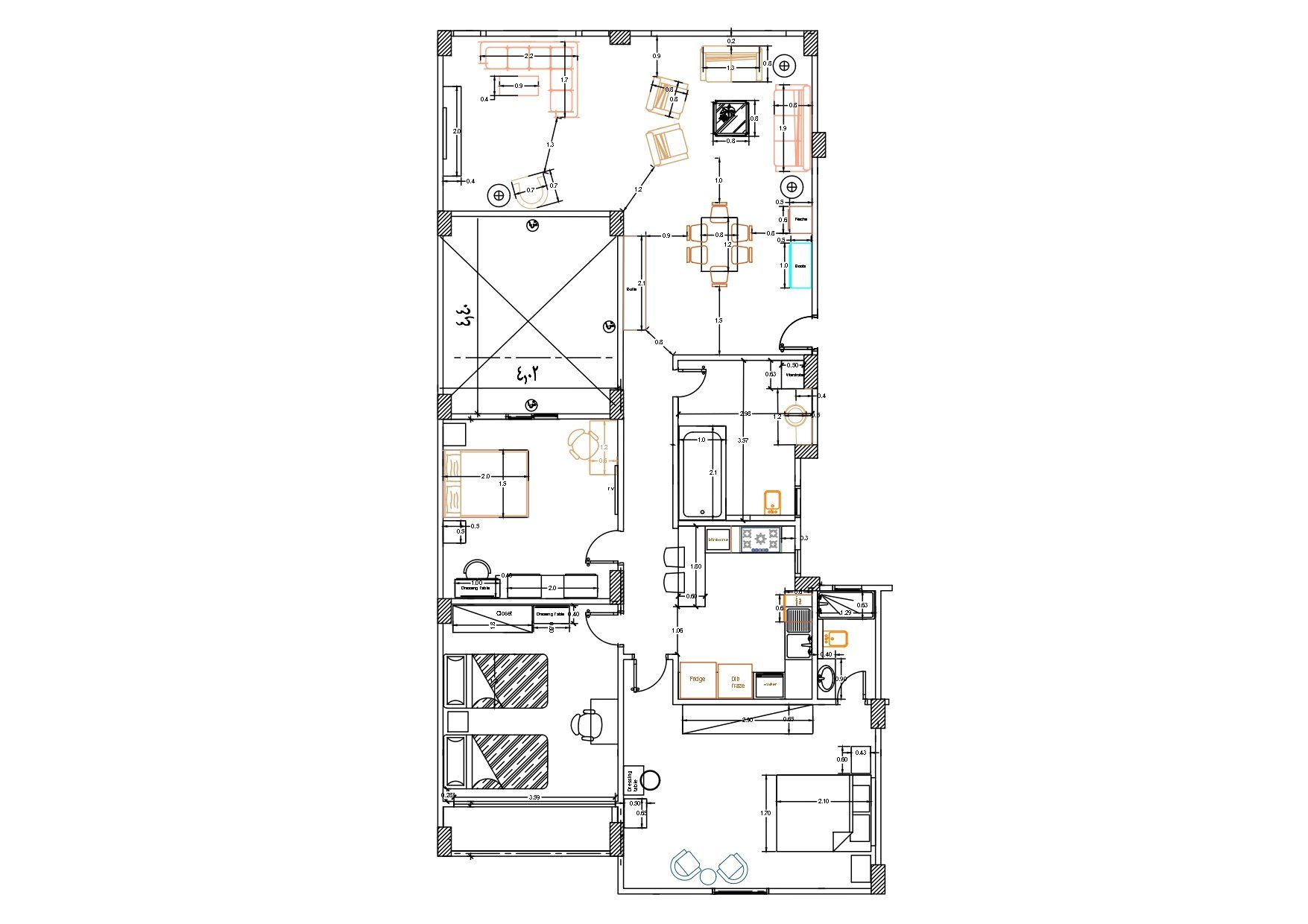
First Phase : 2D Furniture Plan
First Furniture Plan
Sent to The Client(3/7/2022 )

Second Furniture Plan Sent to The Client (16/7/2022 )

Furniture plan options sent to the client (17/7/2022)
Second Phase : Interior Design
When comfort meets simplicity
we Chose sofas, armchairs, consoles, chests of drawers, desks, and wardrobes with impressive but simple shapes. Take care of the cleanliness of the line, composition and harmony in the arrangement of each room, as well as arrangement coherence








































