Project CS-600
Project owner: Ahmed Wahdan
Project Type: Residential
Location: Cairo
Net area: 140 m2
Style: Modern
Designed by: Mai Khawas
Reviewed by: Eng.Shahenda Elsanady
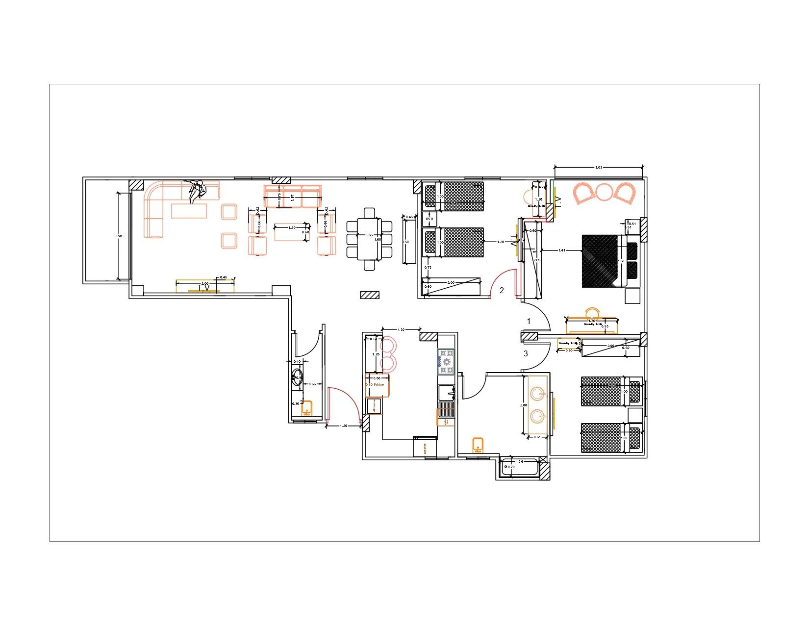
First Phase : 2D Furniture Plan
First Furniture Plan Sent to The Client (16/7/2022 )

Second Furniture Plan Sent to The Client (17/7/2022 )

Furniture plan options sent to the client (20/7/2022)
Second Phase : Interior Design
When comfort meets simplicity
we Chose sofas, armchairs, consoles, chests of drawers, desks, and wardrobes with impressive but simple shapes. Take care of the cleanliness of the line, composition and harmony in the arrangement of each room, as well as arrangement coherence












































































